Property Description
EDIFICIO EN VENTA PRADOS DE ARAGON ESTADO DE MEXICO
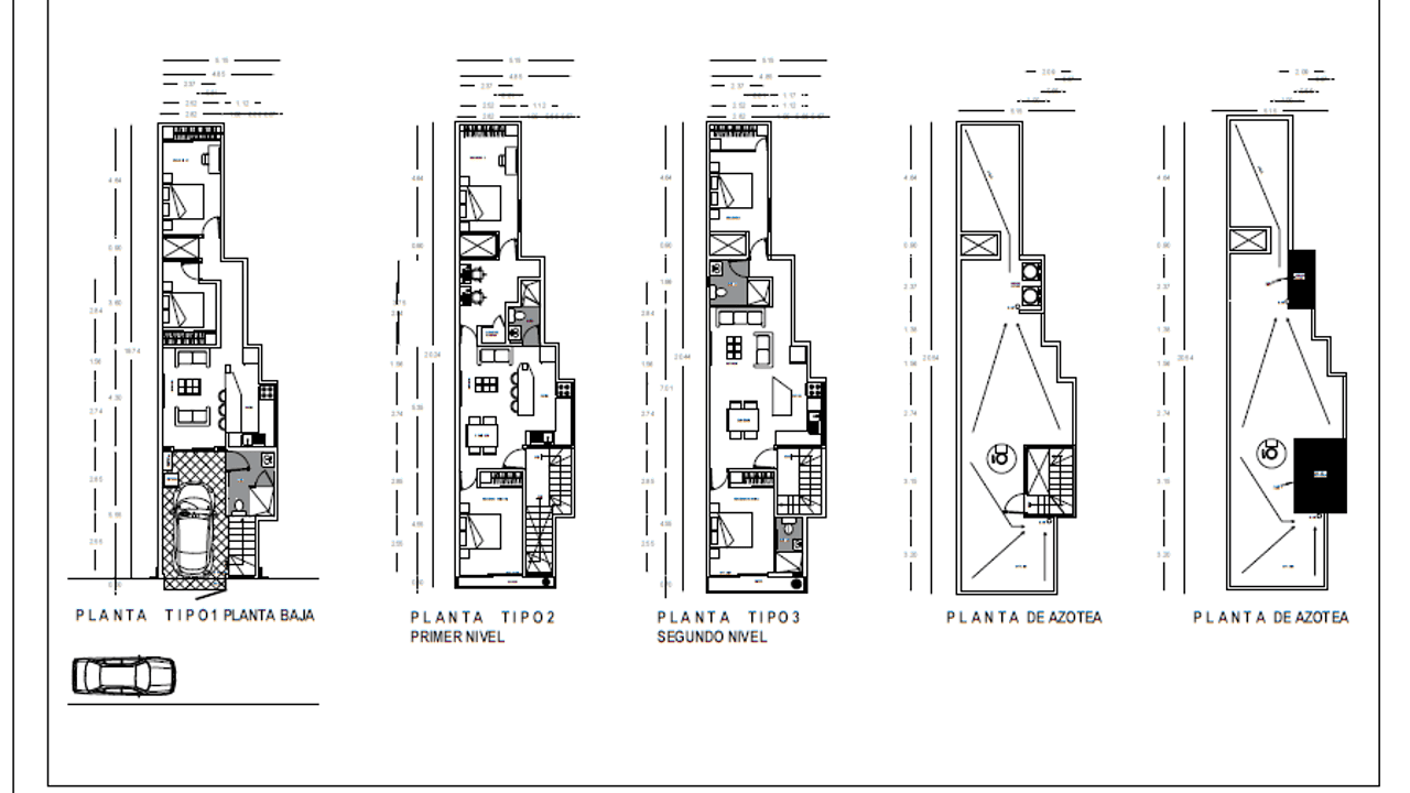
¡Compra este edificio de 3 niveles, con 3 departamentos! Cada departamento cuenta con recámaras, sala comedor y cocina. ¡Destacan por su distribución inteligente y potencial de renta estable! Se venden con o sin inquilinos y se perciben $22,000 mensuales de renta
Todas las cocinas con barras
Terreno: 80 m2
Construcción: 245 m2
6 Recámaras
4 Baños
No cuenta con estacionamiento
Área de lavado en azotea
Departamento planta baja:
2 Recámaras
Sala/comedor
Cocina
1 Baño completo
Departamento intermedio
3 Recámaras
Sala/comedor
Cocina
1 Baño completo
Estudio
Balcón
Departamento planta alta:
2 Recámaras
Sala/comedor
Cocina
2 Baños completos
Balcón
¡Ideal para inversionistas que buscan flujo de efectivo inmediato o familias que desean vivir y rentar al mismo tiempo!
Distribución funcional y espacios bien iluminados. Cada departamento ofrece áreas cómodas y privadas
A pasos de parques, servicios, escuelas y plazas comerciales, transporte público y con acceso rápido a Avenida Central, Río de los Remedios













